3251 CANYON BAY POINTSANFORD, FL 32773




Mortgage Calculator
Monthly Payment (Est.)
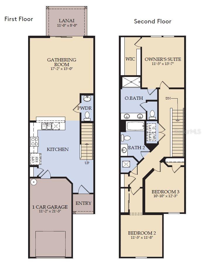
$1,644Under Construction. Welcome to Skylar Crest – a new townhome community all about location! Situated off of Lake Mary Blvd, your new home will provide quick access to downtown Sanford and the RiverWalk, plus all of the shopping & dining Lake Mary has to offer. Just 5 minutes to 417, private homesites, and a resort-style pool, cabana, and playground will provide everything you’re looking for! Discover the perfect blend of convenience and luxury in this move-in ready Springdale two-story townhome by Pulte. Every detail has been thoughtfully crafted to elevate your lifestyle, with designer touches that make your home feel both stylish and sophisticated. This interior-unit townhome offers 3 spacious bedrooms, 2 full bathrooms, a powder room, and a single-car garage, complemented by a covered lanai. The open-concept first floor is perfect for modern living, with a gourmet kitchen featuring quartz countertops, sleek Elkins White cabinetry, a stylish tile backsplash, and stainless-steel Whirlpool appliances, including a refrigerator. The open concept gathering room and café area flow seamlessly into the covered lanai, providing a perfect setting for entertaining or simply relaxing. Upstairs, retreat to your private Owner’s Suite, which boasts a generous walk-in closet and a luxurious en suite bathroom complete with a double-sink quartz vanity, a walk-in shower with a glass enclosure, and ample storage space. Two additional bedrooms, a secondary bathroom, and a conveniently located laundry room offer both privacy and functionality. With elegant, professionally curated design selections including tile flooring, soft and stain-resistant Shaw Brand carpet, Whirlpool washer and dryer, and 2” faux wood blinds, this home is as beautiful as it is practical. Don’t miss the opportunity to make this sophisticated townhome yours—schedule a tour today and experience the luxury and ease of modern living!
| 3 hours ago | Listing updated with changes from the MLS® | |
| 8 hours ago | Status changed to Active | |
| yesterday | Listing first seen on site |
Listing information is provided by Participants of the Stellar MLS. IDX information is provided exclusively for personal, non-commercial use, and may not be used for any purpose other than to identify prospective properties consumers may be interested in purchasing. Information is deemed reliable but not guaranteed. Properties displayed may be listed or sold by various participants in the MLS Copyright 2025, Stellar MLS.
Last checked: 2025-12-06 04:24 AM EST


Did you know? You can invite friends and family to your search. They can join your search, rate and discuss listings with you.