3544 MOSS POINTE PLACELAKE MARY, FL 32746




Mortgage Calculator
Monthly Payment (Est.)
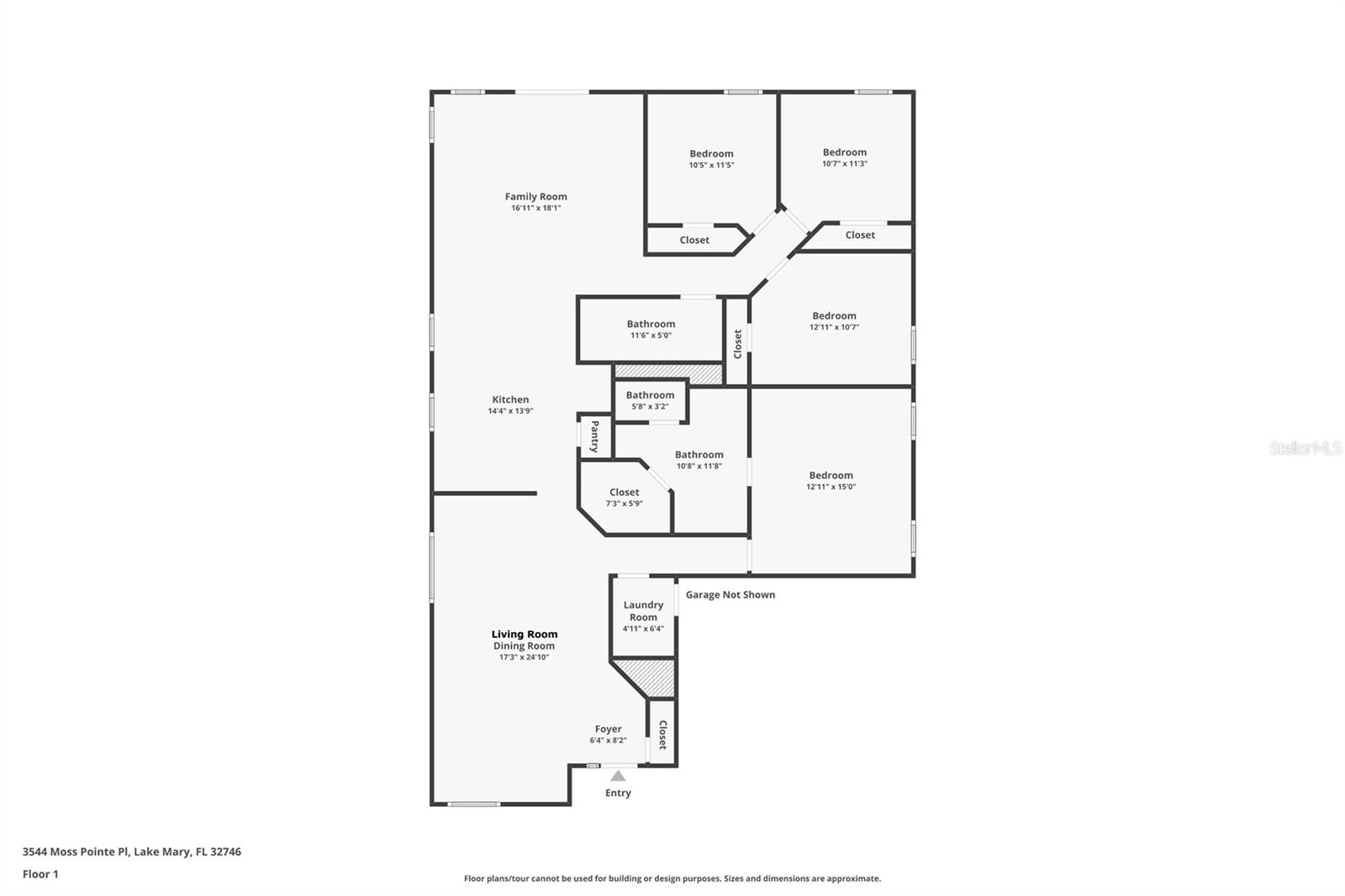
$1,985Beautifully updated 4-bedroom, 2-bath home located in the highly desirable Highlands / Greenwood Lakes community of Lake Mary. This well maintained property offers a spacious 1,956 sq ft split floor plan with multiple living & dining areas, providing flexibility for everyday living & entertaining. The home underwent major renovations in 2015, including new windows, whole home re pipe, updated flooring, & a fully remodeled kitchen featuring quartz countertops, modern cabinetry, stainless steel appliances, & a stylish backsplash. The primary suite includes a walk in closet, dual vanities, a soaking tub, & an updated walk in shower. Secondary bedrooms are generously sized & located on the opposite side of the home for added privacy. Additional features include luxury vinyl plank & tile flooring throughout, updated lighting, & abundant natural light. French doors lead to a brick paver patio overlooking the fenced backyard, ideal for outdoor dining & relaxation. Exterior updates & a good roof provide peace of mind. Conveniently located near top rated Lake Mary schools, shopping, dining, parks, & major highways.
| yesterday | Listing updated with changes from the MLS® | |
| 3 days ago | Listing first seen on site |
Listing information is provided by Participants of the Stellar MLS. IDX information is provided exclusively for personal, non-commercial use, and may not be used for any purpose other than to identify prospective properties consumers may be interested in purchasing. Information is deemed reliable but not guaranteed. Properties displayed may be listed or sold by various participants in the MLS Copyright 2026, Stellar MLS.
Last checked: 2026-02-09 06:35 AM EST


Did you know? You can invite friends and family to your search. They can join your search, rate and discuss listings with you.